La Comunidad de Bardenas Reales convertirá los antiguos locales del Bar Bretaña y del disco pub Honey, ubicados en la calle San Marcial de Tudela, en un “espacio de restauración privada” y en un “espacio multifuncional” de carácter social que estarán conectados y que tendrán la entrada por la propia calle San Marcial. El proyecto prevé un coste de 770.000 euros si bien la partida habilitada en el presupuesto de 2026 de la Comunidad de Bardenas es de 850.000 euros, aunque su presidente, José María Agramonte, ya anunció en la última Junta General que “Bardenas tiene muchos actos sociales y mucha actividad, son muy empleados por la entidad.

Es un edificio de servicios, es una obra nueva y entiendo que incluso el gasto se irá por encima de esa cifra”. El documento para la adecuación de estos locales habla de habilitar dos espacios comunicados de algo más de 400 metros cuadrados orientados “al desarrollo de un espacio socio-cultural multifuncional que, además de albergar actividades de carácter educativo, recreativo, expositivo y de encuentro comunitario, incorpora una zona de restauración destinada a dar servicio tanto a los usuarios del equipamiento como al público general”. La compra del antiguo local del Bretaña se realizó en 2022 y costó 249.021 €, mientras que ya anteriormente se había adquirido el Honey. El montante global rondaba los 500.000 euros y desde el año 2022 se habla de su adecuación.

Antiguo bar Bretaña y antiguo disco pub Honey en la calle San Marcial de Tudela.

Antiguo bar Bretaña y antiguo disco pub Honey en la calle San Marcial de Tudela. Fermín Pérez Nievas

El proyecto

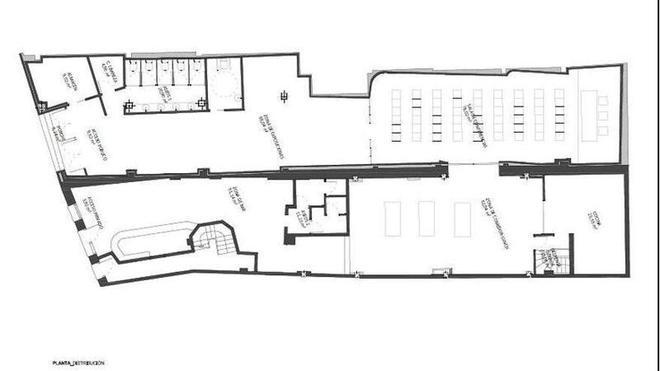
En lo que se refiere a los locales del antiguo bar Bretaña, según señala el proyecto, este local será completamente rediseñado y acondicionado “para acoger un espacio de restauración privada, que estará vinculado a los eventos y actividades que se desarrollen en el local contiguo. El diseño de este espacio se orientará a cumplir con los requisitos funcionales y estéticos propios de un establecimiento de restauración, garantizando que el ambiente sea adecuado para ofrecer un servicio de calidad, en consonancia con el uso del espacio adyacente”.

De esta forma, el local incluirá cocina, zona de servicio, y un área destinada al disfrute de los usuarios durante los eventos o actividades que se lleven a cabo en el complejo. El segundo local, el antiguo disco-pub Honey, pegado al anterior aunque con entrada por el paseo de Invierno, será habilitado como zona de exposiciones y sala de juntas o reuniones, “diseñado para facilitar la realización de conferencias, presentaciones y otros eventos de índole social, cultural o profesional.

Este espacio se proyectará con las características necesarias para albergar exhibiciones, contando con una iluminación adecuada, sistemas audiovisuales de última tecnología y una distribución flexible que permita su adaptación a diferentes tipos de eventos”. Actualmente, los locales en cuestión están divididos, pero se contempla su unificación estructural para optimizar el uso de los espacios, permitiendo que los dos locales funcionen de manera conjunta.

“A pesar de esta integración, se garantizará que cada uno de los espacios mantenga un uso característico y diferenciado que se adapte a sus funciones específicas, favoreciendo su aprovechamiento adecuado”, explica el proyecto. El uso característico de la intervención es dotacional, ya que el objetivo señalado en el proyecto es “la creación de un espacio destinado al servicio y bienestar.

Este tipo de uso está relacionado con la creación de infraestructuras que promuevan la participación social y el acceso a actividades culturales, educativas y recreativas para los usuarios. El proyecto no solo se centra en la rehabilitación de los locales, sino también en la creación de un entorno accesible, flexible y adecuado a las necesidades de la comunidad de Bardenas Reales de Navarra, promoviendo la cohesión social y el desarrollo cultural”, afirma la documentación. En la aprobación de los presupuestos 2026, el representante del Ayuntamiento de Fustiñana mostró sus reservas a que se aprobara esta partida porque “es una cantidad bastante potente”.